00




German Hat Museum 2014Lindenberg
- Client
- City of Lindenberg
- Area (sqm)
- 1,000
Tags: Culture
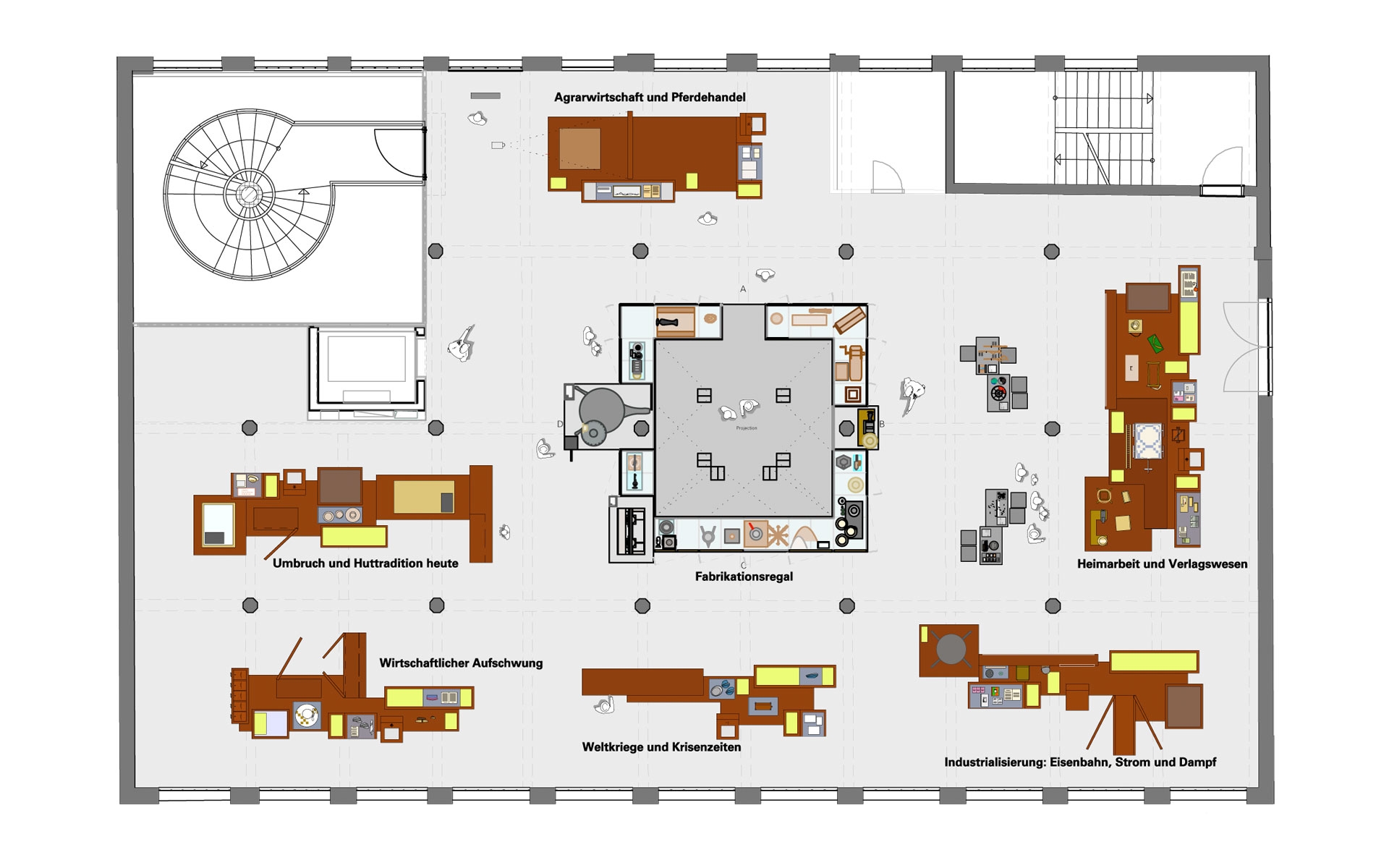
The former hat factory Ottmar Reich, which is situated in the small town of Lindenberg in South Germany, is setting its roots. The new Hat Museum presents the history of the city, the fashion and fabrication in a lively appearance. The municipality was considered one of the most important hat centres in Germany until the 1970s. Their popularity grew tremendously as far as the USA with their export hit, the Matelot – also known as porkpie hat. Lindenberg's century-old hat tradition will now be revitalized and visitors can experience it in a new way.
- Exhibition Concept, Scenography
- ATELIER BRÜCKNER
- Light Planning
- LDE Belzner Holmes
- Media Planning
- intermediate engineering
- Media Design and Production
- 2av
- Exhibition Graphics
- Emde Gestaltung
- Architecture/Renovation
- JAUSS + GAUPP
- Photography
- Daniel Stauch
Bayerischer Museumspreis |
Micheletti Award |
Focus Open |
German Design Award
Project details

