00




The National Maritime Museum 2011Amsterdam
- Client
- Het Scheepvaartmuseum
- Area (sqm)
- 1,230
Tags: Culture
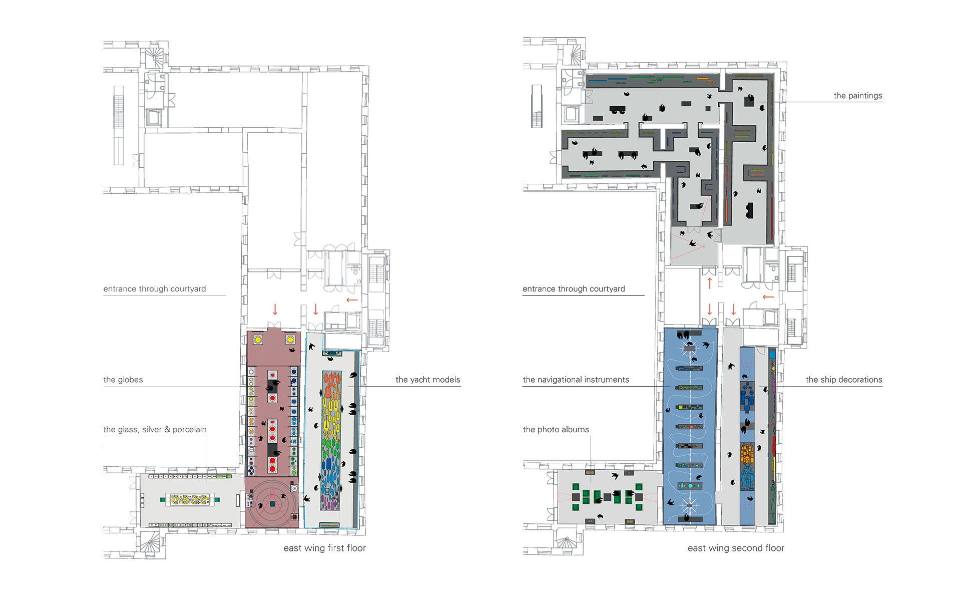
The object gallery of the National Maritime Museum is primarily addressed to visitors who are interested in art. The high-quality museum collection was divided into seven object groups. In addition to unique, valuable globes and the important collection of navigation instruments, there are models of ships, maritime paintings, ships' ornaments, photo albums and handcrafted items made of glass, silver and porcelain. These are set in scene in an exhibition area of around 1,200 square metres. For each group of objects, a specific narrative space was developed, whereby the exhibit is the starting point and simultaneously an integrative component of the narrative space.
- Exhibition Concept and Design, Scenography
- ATELIER BRÜCKNER
- Light Planning
- Lichtontwerpers
- Media Production
- Kiss the Frog
- Exhibition Graphics with
- attraktive grautöne
- Architecture/Conversion
- Dok Architects
- Photography
- Michael Jungblut
DDC Award |
red dot |
ADC Award
Project details
