



Rautenstrauch-Joest-Museum 2010Cologne
Client
City of Cologne, Department of Arts and Culture
Area (sqm)
3,600
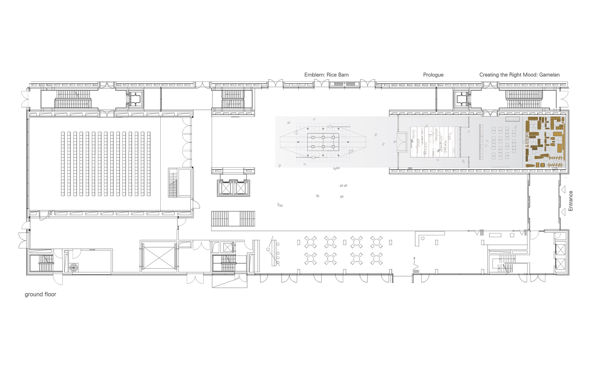
With the thematically dedicated presentation entitled "People in Their Worlds“, the Rautenstrauch-Joest-Museum invites the visitor to embark on a journey of exploration that is as amazing as it is informative. The innovative exhibition with its comparison of diverse cultures covers an area of 3,600 square metres spread out over three floors. Narrative spaces embedded in different staged settings structure the long exhibition rooms with a fascinating sequence of varied spatial experiences. Outstanding exhibits relating to everyday life and festival culture from different regions of the earth encourage the visitor to recognise the equal rights and equal value of different ways of life. The marked-out visitor routing takes the visitor through the exhibition areas entitled "Shaping the World" and "Understanding the World", each of which is subdivided into several theme-based subsections. The innovative, multimedia exhibition concept promises a wide range of details and enjoyable entertainment. Both young and old have the opportunity to take part in a stimulating, exciting and memorable museum experience.
- Exhibition Design, Scenography, Exhibition Graphics
- ATELIER BRÜCKNER
- Light Planning with
- LDE Belzner Holmes
- Media Planning with
- jangled nerves with medienprojekt p2
- Architecture
- Schneider + Sendelbach Architekten
- Photography
- Michael Jungblut


