August Horch Museum 2017Deutschland
Auftraggeber
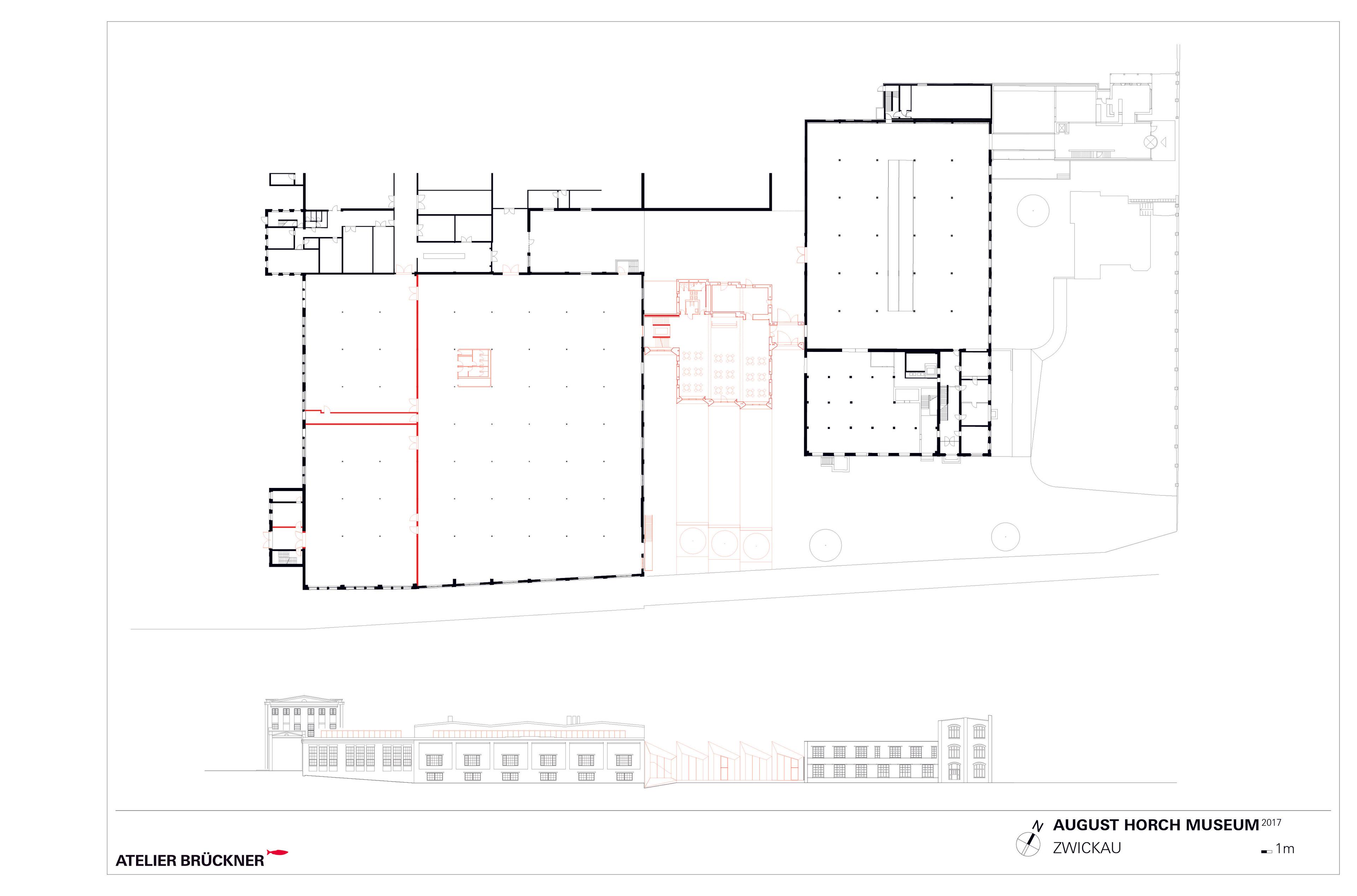
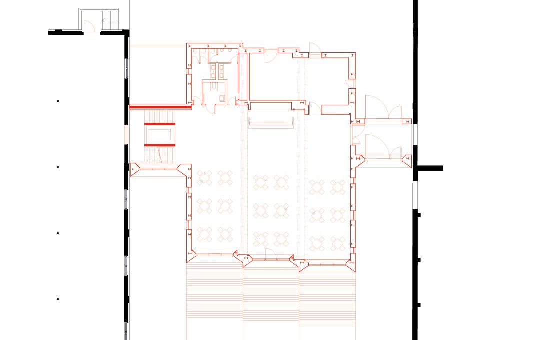
August Horch Museum Zwickau
Größe (qm)
5500
Pressetexte

Pressemitteilung August Horch Museum (pdf, 61.98 KB)
Fotografien

Automobil trifft Architektur (jpg, 6.01 MB)
Foto: Daniel Stauch

Architektur Inszenierung (jpg, 5.02 MB)
Foto: Daniel Stauch

Architektur Interieur Sheddach (jpg, 4.42 MB)
Foto: Daniel Stauch

Architektur Interieur Dynamik (jpg, 6.52 MB)
Foto: Daniel Stauch

Architektur Interieur Restaurant (jpg, 6.64 MB)
Foto: Daniel Stauch

Architektur Andocken (jpg, 7.26 MB)
Foto: Daniel Stauch

Altbau historische Klinkerfassade (jpg, 6.15 MB)
Foto: Daniel Stauch

Altbau Museumserweiterung (jpg, 2.29 MB)
Foto: Daniel Stauch

Altbau Museumserweiterung (jpg, 4.93 MB)
Foto: Daniel Stauch

Altbau Museumserweiterung (jpg, 6.07 MB)
Foto: Daniel Stauch

Architektur historisches Ensemble (jpg, 5.87 MB)
Foto: Daniel Stauch
Pläne

Grundriss & Schnitt Gesamtübersicht (pdf, 230.42 KB)

Grundriss Restaurant (pdf, 109.30 KB)
Datenblatt

Datenblatt August Horch Museum (pdf, 142.79 KB)













