Dokumentationszentrum Flucht, Vertreibung, Versöhnung 2021Deutschland
Auftraggeber
Bundesstiftung Flucht, Vertreibung, Versöhnung
Größe (qm)
1700
Pressetexte

Pressemitteilung Dokumentationszentrum Flucht, Vertreibung, Versöhnung (pdf, 137.51 KB)
Fotografien

Dokumentationszentrum Flucht, Vertreibung, Versöhnung. 1 OG. Themenbereich Wege und Lager (jpg, 4.98 MB)
Foto: Michael Jungblut

Dokumentationszentrum Flucht, Vertreibung, Versöhnung. 1 OG. Durchblicke filigrane Rahmen thematisch unterschiedlich ausgestaltet. (jpg, 3.71 MB)
Foto: Michael Jungblut

Dokumentationszentrum Flucht, Vertreibung, Versöhnung. 1 OG. Raumbild filigrane Rahmen thematisch unterschiedlich ausgestaltet (jpg, 4.72 MB)
Foto: Michael Jungblut

Dokumentationszentrum Flucht, Vertreibung, Versöhnung. 1 OG. Themenbereich Verlust und Neuanfänge (jpg, 2.62 MB)
Foto: Michael Jungblut

Dokumentationszentrum Flucht, Vertreibung, Versöhnung. 1 OG. Bullauge der Wilhelm Gustloff/ Themenbereich Erinnerung und Kontroversen (jpg, 3.38 MB)
Foto: Michael Jungblut

Dokumentationszentrum Flucht, Vertreibung, Versöhnung. 2 OG. Ideologische Voraussetzungen (jpg, 2.76 MB)

Dokumentationszentrum Flucht, Vertreibung, Versöhnung. 1 OG. Eine europäische Geschichte der Zwangsmigrationen (jpg, 10.50 MB)
Foto: Michael Jungblut

Dokumentationszentrum Flucht, Vertreibung, Versöhnung. 2 OG. Flucht und Vertreibung der Deutschen/ Bereich Vertriebene und Flüchtlinge in Deutschland nach 1945. (jpg, 4.60 MB)
Foto: Michael Jungblut

Dokumentationszentrum Flucht, Vertreibung, Versöhnung. 2 OG. Flucht und Vertreibung der Deutschen/ Pavillon Herkunft und Ankunft (jpg, 6.95 MB)
Foto: Michael Jungblut

Dokumentationszentrum, Flucht, Vertreibung, Versöhnung. 2 OG. Tschechoslowakei, Polen, Holocaust, Sowjetunion, Südosteuropa. Allierte Planungen (jpg, 704.00 KB)

Dokumentationszentrum Flucht, Vertreibung, Versöhnung. 2 OG. Neuordnung durch Vertreibung (jpg, 3.48 MB)
Foto: Michael Jungblut

Dokumentationszentrum Flucht, Vertreibung, Versöhnung. 2 OG. Deutsche im nördlichen Ostpreußen (jpg, 2.82 MB)

Dokumentationszentrum Flucht, Vertreibung, Versöhnung. 2 OG. Private Erinnerungskultur/ Architekturmodelle der Stadt Allenstein Heimat von Anton Keuchel (jpg, 3.79 MB)
Foto: Michael Jungblut

Dokumentationszentrum Flucht, Vertreibung, Versöhnung. 2 OG. Zusammenbruch der Fronten/ Massenhafte Zwangsaussiedlung (jpg, 3.38 MB)

Dokumentationszentrum Flucht, Vertreibung, Versöhnung. 2 OG. Flucht und Vertreibung der Deutschen/ Private Erinnerungskultur Thema Heimatstuben (jpg, 3.93 MB)
Foto: Michael Jungblut
Pläne

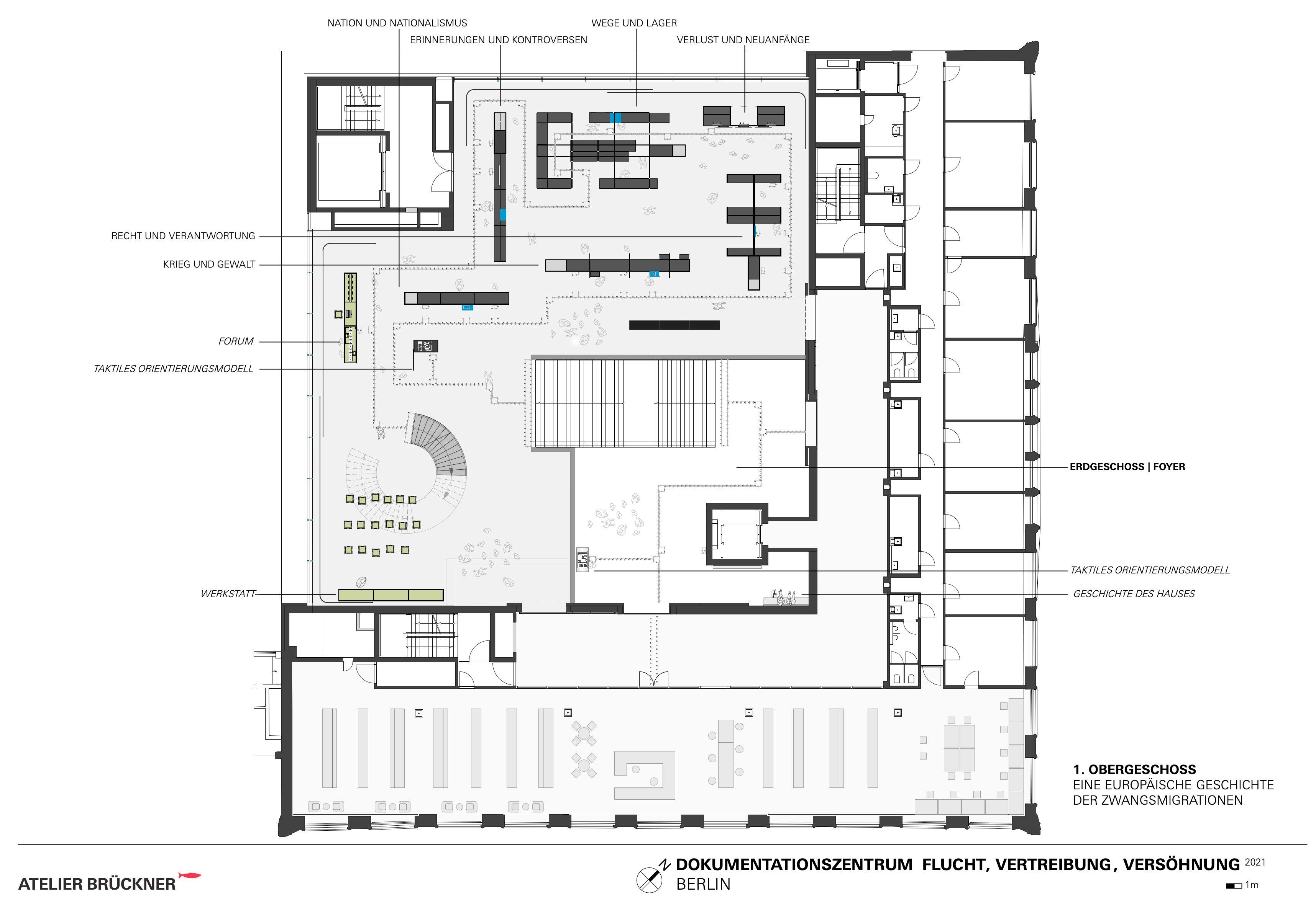
Grundriss 1. OG Dokumentationszentrum Flucht, Vertreibung, Versöhnung (pdf, 354.21 KB)

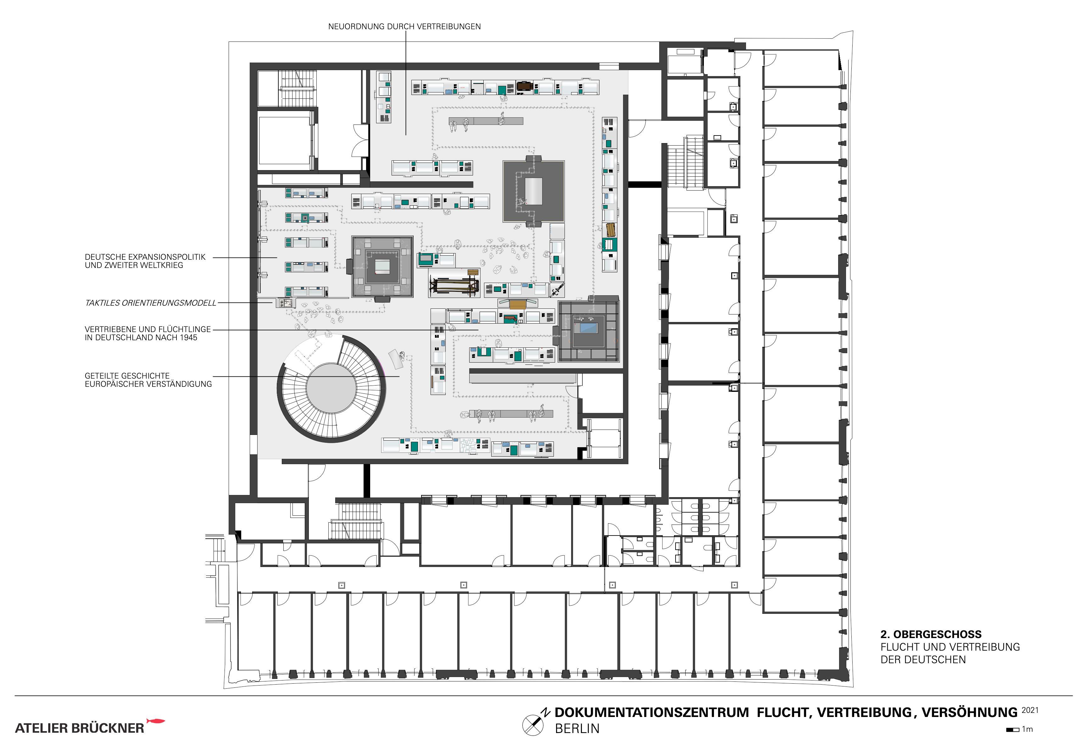
Grundriss 2. OG Dokumentationszentrum Flucht, Vertreibung, Versöhnung (pdf, 438.52 KB)

Schnitt (links) Dokumentationszentrum Flucht, Vertreibung, Versöhnung (pdf, 383.68 KB)

Schnitt (rechts) Dokumentationszentrum Flucht, Vertreibung, Versöhnung (pdf, 305.37 KB)


















