Expertisium 2013Deutschland, Aesculap Akademie
Auftraggeber
Aesculap Akademie GmbH, Tuttlingen
Größe (qm)
650
Pressetexte
Fotografien

Raumbild Großinstallation Mensch (jpg, 25.13 MB)
Foto: Brigida González

Großinstallation Mensch (jpg, 11.65 MB)
Foto: Brigida González

Multimedienstation (jpg, 14.81 MB)
Foto: Brigida González

Produktansicht (jpg, 16.12 MB)
Foto: Brigida González

Produktpräsentation (jpg, 14.65 MB)
Foto: Brigida González

Firmen- und Medizingeschichte (jpg, 18.40 MB)
Foto: Brigida González

Kompetenzzentrum Chirurgie (jpg, 27.34 MB)
Foto: Brigida González

Kompetenzzentrum Beratung (jpg, 24.33 MB)
Foto: Brigida González

Kompetenzzentrum Produktpräsentation (jpg, 12.72 MB)
Foto: Brigida González
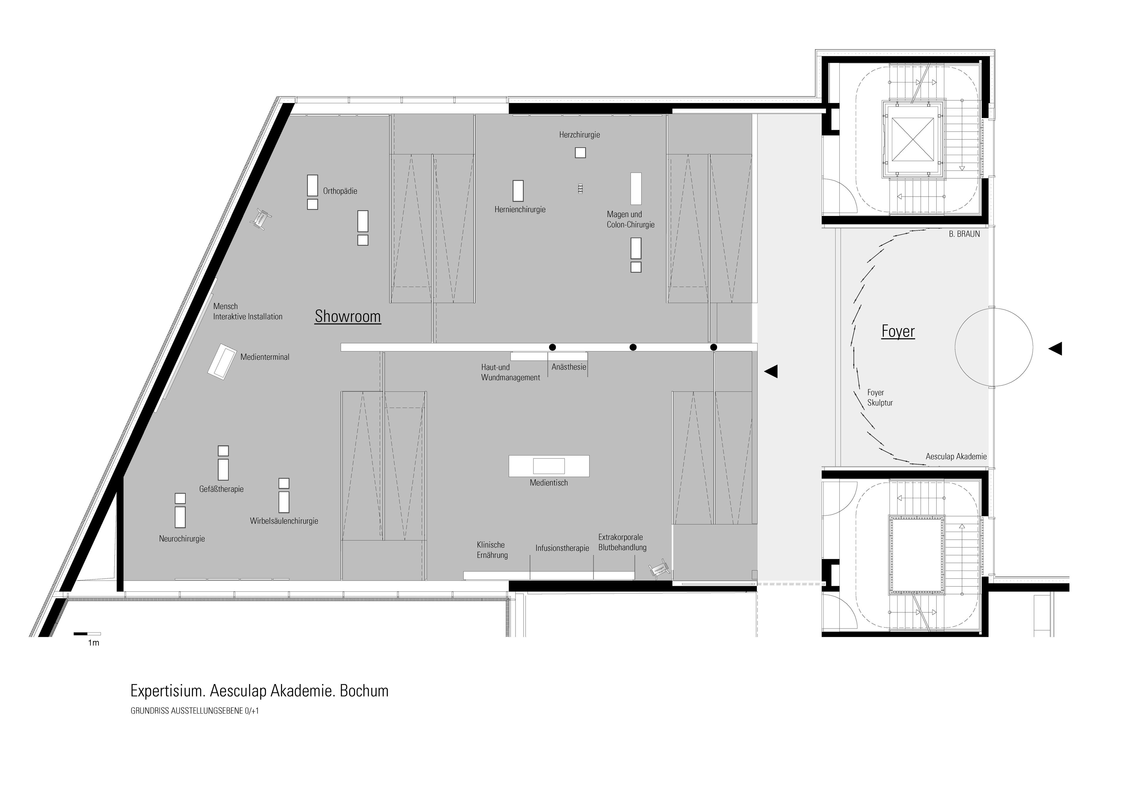
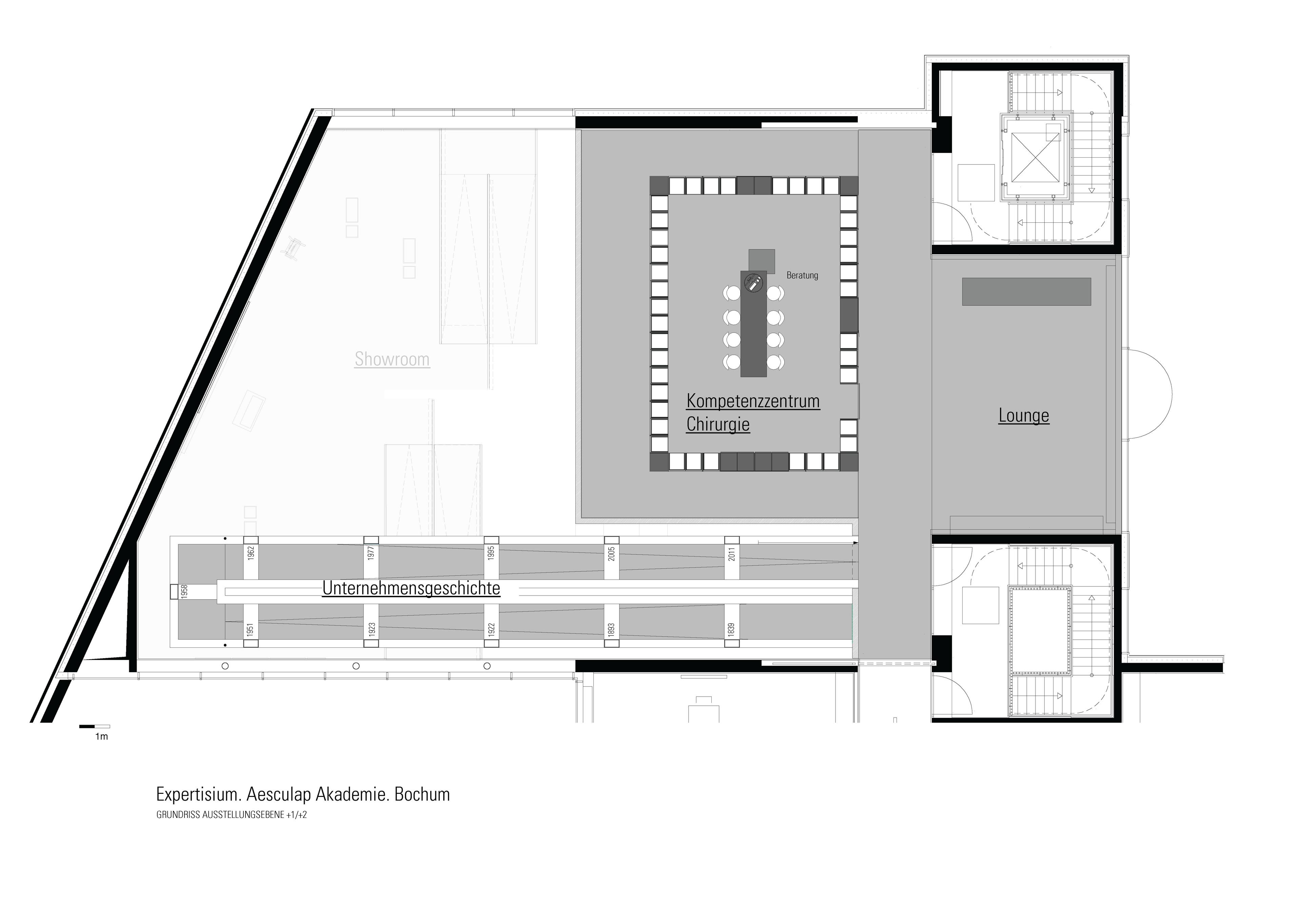
Planmaterial

Foyer + Showroom (pdf, 1.82 MB)

Rampe + Kompetenzzentrum (pdf, 1.93 MB)
Datenblatt

Datenblatt (rtf, 2.67 KB)

Projektpartner (rtf, 5.43 KB)












