IDDIS – Norwegian Printing Museum 2021Norwegen
- Auftraggeber
- MUST Museum Stavanger
- Größe (qm)
- 655
Pressetexte

Pressemitteilung (pdf, 86.13 KB)
Fotografien

IDDIS – Norwegian Printing Museum (jpg, 14.95 MB)
Foto: Marcus Sies

IDDIS – Norwegian Printing Museum (jpg, 11.09 MB)
Foto: Marcus Sies

IDDIS – Norwegian Printing Museum (jpg, 12.85 MB)
Foto: Marcus Sies

IDDIS – Norwegian Printing Museum (jpg, 6.47 MB)
Foto: Marcus Sies

IDDIS – Norwegian Printing Museum (jpg, 9.54 MB)
Foto: Marcus Sies

IDDIS – Norwegian Printing Museum (jpg, 10.94 MB)
Foto: Marcus Sies

IDDIS – Norwegian Printing Museum (jpg, 13.58 MB)
Foto: Marcus Sies
Pläne

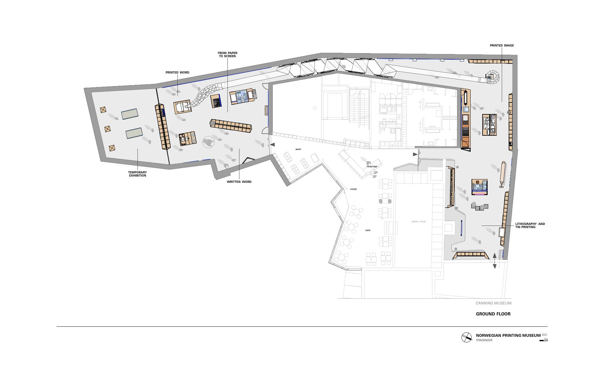
Erdgeschoss Plan (jpg, 430.11 KB)

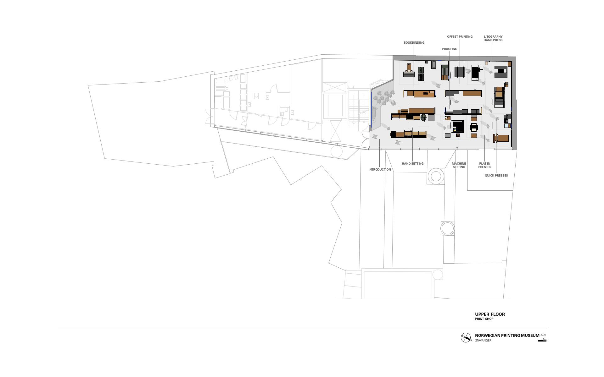
Obergeschoss Plan (jpg, 255.88 KB)








